2026-01-14 09:47:52132
星艺装饰 · 筑梦34年
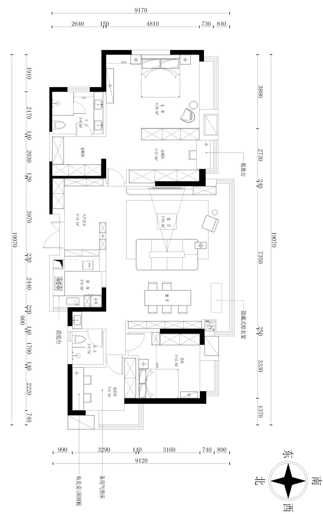
楼盘名称 | project name 东郡誉苑
项目地址 | Project address 城中区
项目面积 | Building area 174㎡
项目类型 | Project type 大平层
施工机构 | Project corporation 星艺装饰工程中心
细节是隐形的C位,调动着整个空间诉说的基调,木作定制隐藏的收纳空间感,微观点睛处的升华,皆生长出仪式与人文的品格。




客餐厅大横厅的布局,采用意式极简深浅色系的搭配,全屋无主灯氛围灯光设计,7.35米的大落地窗采光和视野真的治愈

U字型的厨房做高低落差橱柜,实现利用率最大化,满足洗、切、炒、煲 各种电器的摆放



把三间卧室打通合拼成一套超50㎡的大主卧;创造出一个极致的休息空间,超大的衣帽间,假如有一天你卧室超50㎡就可以直接抄作业


另一面预留了一个小孩房加业主喜欢的电竞房
上一篇:建发央玺105㎡,中古风下一篇:和顺江山